PVP3000
PV Powered continues to deliver industry leading reliability and technical innovations that lower the cost of installation. The addition of a factory-integrated AC and DC PV System Disconnect that exceeds UL and NEC requirements is exactly what you have come to expect from PV Powered.
Our inverter architecture with deep software integration and significantly lower parts count is the foundation of PV Powered’s industry-leading reliability. Validated by sophisticated reliability modeling and rigorous endurance testing we are confident in our claim of lowest lifetime cost.
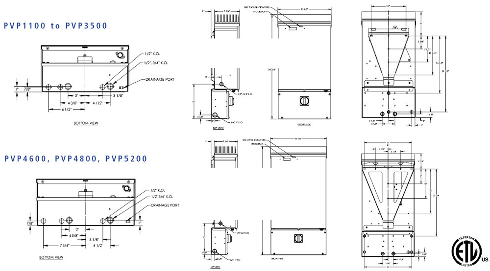
The new integrated PV System Disconnect reduces total installation interconnects from 15 to 5, eliminating common failure points. Optimally placed knockouts provide a variety of conduit routing options with minimized bending requirements further saving on installation time and material costs. Our robust testing of the switch mechanism to UL 98 standards ensures inspector approval.
PV Powered’s string inverters are backed by the industry’s first nation-wide ten year warranty and a service reimbursement program unparalleled in the industry. Optional performance monitoring is available which includes low cost, secure web-based access to your system’s status and performance history.
Features
Industry-Leading Reliability
- Endurance tested to 20 year operating life
- Significant software integration versus complex hardware design
- Lowest part counts and fewest interconnects eliminate common failure points
- Field-proven with thousands of units installed nationwide
Integrated AC and DC PV System Disconnect
- Robust testing of switch mechanism to UL98 standard ensures inspector approval
- Single AC and DC switch visible and lockable in the OFF position
- Internal wire racewy isolates the conductors for each circuit, AC, DC, and LV DC communications
- Internal wire raceway easily accommodates up to four inverters side-by-side
- UL 98 and NEC 690 compliant
- Direct-to-wall surface enclosure mounting design allows for easy back entry installation
Easy Installation
- Factory integrated inverter and PV System Disconnect eliminates the need for extra equipment
- Interconnections reduced from 15 to 5 points, saving installation time and material costs
- Field-configurable inverter grounding scheme with simple jumper selection
- Optimally placed knockouts for a variety of conduit routing with minimized bending
Installer-Focused Support
- No special clubs or purchase requirements to get the best technical support in the industry
- Live phone support
- $150 service reimbursement that sets the industry standard for RMA compensation
- Optional performance monitoring available
Electrical Characteristics
Continuous Output Power (watts): |
3000 |
Weighted CEC Efficiency (%): |
93.5 |
Maximum DC Input Voltage (VOC): |
500 |
DC Voltage Operating Range (V): |
170-450 |
DC Minimum Start Voltage: |
185 |
DC Isc Maximum Current (A): |
26 |
DC Imp Nominal Current (A): |
18 |
AC Maximum Continuous Current (Amps): |
13 |
AC Nominal Voltage (V): |
240 |
AC Output Voltage Range (V): |
211-264 |
AC Frequency Range (Hz): |
59.3-60.5 |
Mechanical Characteristics
AC & DC Disconnects: |
Inverter with Factory-Integrated AC and DC PV System Disconnect |
Enclosure: |
NEMA 3R Steel |
Mounting: |
Wall Mounted with Bracket Included |
Weight (lbs): |
80 |
Inverter with Disconnect Dimensions (H x W x D): |
30-3/8" x 15-5/8" x 8-1/4" |
Agency Approvals: |
UL 98 13th Edition, Enclosed and Dead-Front Switches, UL 1741 Nov 2005 Revision, IEEE 1547 Compliant, FCC Class A & B |
Specifications subject to change without notice.
Dimensions

Larger View